26 Fotos und Anhänge ansehen
Immobilienprofis.Bayern | Treffler Immobilien GmbH - Vertriebspartner der Wand Massivaus GmbH
Peter-Dörfler-Str. 30, 86199 Ausgsburg
Patrick Gilg

Bildschirmfoto 2025-12-30 um 13.03.04

EFH Como_4

EFH Como_3

EFH Como_1

EFH Como_2

EG_EFH Como

OG_EFH Como

Planung Exposé.1

Karte_der_S-Bahn_München

Lage_Gauting

Immobilienprofis.Bayern_Partner von Wand-Massivhaus

Immobilienprofis.Bayern Treffler Immobilien GmbH Planung

Planung

01 Impressionen IPB

02 Impressionen IPB

03 Impressionen IPB

04 Impressionen IPB

05 Impressionen IPB

06 Impressionen IPB

07 Impressionen IPB

Familie

Effizienzhaus

logos

TÜV geprüfte Bauqualität!

Immobilienprofis.Bayern Treffler Immobilien GmbH

Tippgeberprovision sichern - Immobilienprofis.Bayern

Neubau: Absolute Premiumlage in Gauting-Stockdorf | Einfamilienhaus | ruhig & familienfreundlich!

Eckdaten

  • Art Einfamilienhaus
  • Lage 82131 Gauting
  • Kaufpreis 1.284.000,00
  • Wohnfläche ca. 161
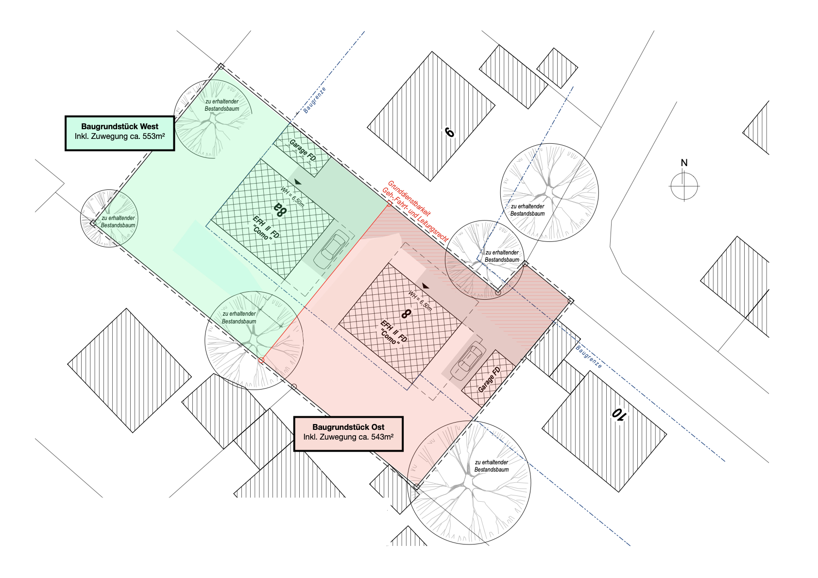
  • Grundstück ca. 543
  • Zimmer 6
  • Baujahr 2026
  • Etagenzahl 2
  • Alt-/Neubau Neubau
  • Heizungsart Fußbodenheizung
  • Gäste-WC ja
  • Stellplatzanzahl 2
  • Bezugstermin 8 Mon. nach Baubeginn
  • Fahrzeit Hauptbahnhof 20 min
  • Fahrzeit nächste Autobahnauffahrt 8 min
  • Fahrzeit nächster Flughafen 40 min
  • Ausstattung des Bades Badewanne Dusche
  • Zustand Erstbezug
  • Immobilien-ID 124627975
  • Provision 3,57% inkl. MwSt auf den Grundstückspreis. Das Haus ist selbstverständlich provisionsfrei

Immobilie

Immobilienprofis.Bayern - Vertriebspartner von Wand-MassivHaus - DAHEIM STATT NUR ZU HAUSE!

Ihr EINFAMILIENHAUS in einem wunderschönen, familienfreundlichen Wohngebiet in Gauting-Stockdorf
Unser Konzept:
Modernes Wohnen mit zeitloser Eleganz – individuell planbar nach Ihren Wünschen

Dieses durchdacht geplante Haus vereint ein modernes Wohnkonzept mit klassischer Ästhetik. Im Erdgeschoss erwartet Sie ein großzügiger Wohnbereich mit Blick in den eigenen Garten – ideal zum Entspannen und Wohlfühlen. Die offen gestaltete Küche lädt zu gemeinsamen Kochabenden ein und bietet viel Raum für geselliges Beisammensein. Auf Wunsch kann sie auch separat vom Wohnbereich abgetrennt werden. Ein weiteres Highlight ist das flexibel nutzbare Zimmer im Erdgeschoss – ideal als Homeoffice, Gästezimmer oder Rückzugsort. Ergänzt wird das Raumangebot durch ein stilvolles Gäste-WC sowie einen weitläufigen Eingangsbereich mit ausreichend Platz für Garderobe und Stauraum. Im Obergeschoss befinden sich drei gut geschnittene Schlafzimmer, ein zusätzliches Büro sowie ein hochwertig ausgestattetes Badezimmer mit Badewanne und bodengleicher Dusche – perfekt für Familienbedürfnisse und entspannte Momente.

Die Grundrisse bieten Ihnen maximale Flexibilität und können selbstverständlich individuell an Ihre persönlichen Wünsche und Lebenssituationen angepasst werden.

Optional realisieren wir dieses Haus auch mit vollwertigem Kellergeschoss – weitere Informationen entnehmen Sie bitte dem Exposé mit Kellervariante.

Schon in der Grundausstattung:

- Massive Bauweise
- 3-Scheibenverglasung
- Rolläden
- inkl. Terrasse
- Freizeit "Plus" Behörden - Paket
- Dusche im Gäste-WC
- Vordachbereich
- Doppelwaschtisch
- Handtuchheizkörper
- Lüftungsanlage mit WRG (ab KFW55 zentrales Lüftungssystem)
- Luft- Wärmepunpe
- Fliesen z.B. von Villeroy & Boch
- Aussenwasserhahn (frostsicher)

- Ankleidezimmer
- Büro

u.v.m...

* EFFIZIENZHAUS 40, 40 PLUS ODER 55 selbstverständlich möglich

Förderprogramme Bayern:

// BayernLabo | Förderprogramm der Bayerischen Ladesbodenkreditanstalt:

- Bayerisches Wohnungsbauprogramm
https://bayernlabo.de/eigenwohnraumfoerderung/eigenheimfinanzierung/bayerisches-wohnungsbauprogramm

- Bayerisches Zinsverbilligungsprogramm
https://bayernlabo.de/eigenwohnraumfoerderung/eigenheimfinanzierung/bayerisches-zinsverbilligungsprogramm


// Kfw:

- https://www.kfw.de/inlandsfoerderung/Privatpersonen/Neubau/
- https://www.kfw.de/inlandsfoerderung/Privatpersonen/Neubau/F%C3%B6rderprodukte/F%C3%B6rderprodukte-PB-Neubau.html

(Alle Angaben bzw. Informationen zu Förderprogrammen und/oder unterstützenden Förderungen aller Art, sind ohne Gewähr und vom Erwerber abzuklären. Es besteht kein grundsätzlicher Anspruch darauf. Immobilienprofis.Bayern, Treffler Immobilien GmbH, übernimmt keine Haftung auf die Richtigkeit von Angaben. Fehlerhafte Fremdaussagen, Irrtum etc. müssen wir uns daher vorbehalten)

Lage

Ihr neues Zuhause in Stockdorf – familienfreundliche Lage südwestlich von München – ruhig wohnen in naturnaher Umgebung - fußläufige Anbindung an die S-Bahn - sehr gute Erreichbarkeit über die A96 und A95 - kurze Wege in die Münchner Innenstadt



Hervorragende Anbindung

S-Bahn:
• In ca. 12 Gehminuten zur S-Bahn-Station Stockdorf (S6)
• In nur 25 Minuten Fahrtzeit direkt zum Münchner Hauptbahnhof

Öffentliche Verkehrsmittel:
• Busverbindungen Richtung Gauting, Gräfelfing und Planegg
• Anschluss an die U-Bahn-Linie U6 in Großhadern über die S-Bahn oder Buslinien

Mit dem Auto:
• 20 Minuten ins Münchner Stadtzentrum
• 40 Minuten zum Flughafen München über A96 / A99
• 30 Minuten zum Starnberger See
• 45 Minuten nach Augsburg
• Schnelle Anbindung über die Autobahnen A96 (Richtung Lindau/München) und A95 (Richtung Garmisch/München)



Wohnen in Stockdorf

Stockdorf, als Ortsteil der Gemeinde Gauting im idyllischen Würmtal, zählt zu den besonders begehrten Wohnlagen im Münchner Südwesten. Die Peter-Dörfler-Straße liegt in einem sehr ruhigen, gepflegten Wohngebiet, das von Einfamilienhäusern und kleineren Mehrfamilienhäusern geprägt ist.

Die Lage bietet ideale Bedingungen für Familien:
• Ruhiges, naturnahes Umfeld mit viel Grün
• Kindergärten, Grund- und weiterführende Schulen in Gauting und Planegg schnell erreichbar
• Zahlreiche Einkaufsmöglichkeiten und Geschäfte des täglichen Bedarfs in unmittelbarer Nähe



Natur & Freizeit

Die Nähe zu Wald- und Wiesenflächen sowie zur Würm ermöglicht ausgedehnte Spaziergänge, Radtouren und Aktivitäten im Freien. In wenigen Minuten erreicht man:
• den Forstenrieder Park mit großem Freizeit- und Erholungswert
• den Starnberger See als Ausflugsziel für Wassersport und Erholung
• vielfältige Sport- und Freizeitangebote in den örtlichen Vereinen



Fazit

Gauting-Stockdorf bietet eine sehr familienfreundliche, ruhige und naturnahe Lage mit gleichzeitig exzellenter Anbindung an München und die umliegende Region. Das perfekte Heim für eine kleine Familie, die Wert auf Lebensqualität, Natur und Nähe zur Stadt legt.

Ausstattung

Das Haus wird von Wand-MassivHaus in Massiv-Bauweise erstellt und im Schlüsselfertigen Zustand an Sie übergeben. Lediglich die Bodenbeläge (außer Bad und WC) und die Malerarbeiten müssen Sie in Eigenleistung erstellen oder an uns vergeben.

Genaueres können Sie unserer Bau- u. Leistungsbeschreibung im Anhang entnehmen und/oder wir stehen Ihnen im persönlichen Gespräch zur Verfügung.
Rufen Sie uns einfach an, wir freuen uns auf Sie!

Die Bauherren-Schutz-Pakete sind im Kaufpreis eines Hauses enthalten:

- BAULEISTUNGSVERSICHERUNG
Sie schützt Bauherrn und Bauunternehmer vor unvorhersehbaren Schäden während des Bauvorganges, die z. B. durch höhere Gewalt (Hochwasser, Sturm), Vandalismus,
Konstruktions- und Materialfehler, Fahrlässigkeit verursacht werden.

- FEUERROHBAUVERSICHERUNG
Die Versicherung des Feuerrisikos erfolgt bei uns über die Bauleistungsversicherung mit Ergänzungsdeckung für Feuerrisiken. Damit sind durch die Bauleistungsversicherung Schäden, wie z. B. Feuer (Brand, Blitzschlag, Explosion) sowie Schäden durch bemannte oder unbemannte Flugkörper, abgedeckt.

- 5 Jahre Gewährleistung nach BGB

-BAUGEWÄHRLEISTUNGSVERSICHERUNG 100.000,00 EURO
Auch die Baugewährleistungsversicherung wird vom Auftragnehmer für jedes Bauvorhaben ab- geschlossen und ist bereits im Festpreis enthalten. Schon in der Planungsphase werden die Unterlagen an die Sachverständigen der Versicherung gesendet und geprüft. Auch die Bonität des Bauunternehmens unterliegt der Prüfung durch den Versicherer. Die Baugewährleistungsversicherung bietet für den Bauherrn außerdem fünf Jahre Schutz nach Bauabnahme.

-BAUHERRENHAFTPFLICHT- VERSICHERUNG
Diese Versicherung ist ebenfalls bereits im Bauvertrag enthalten, da diese sehr wichtig ist. Die Bauherrenhaftpflicht bietet Schutz gegen gesetzliche Haftansprüche aufgrund von Verletzungen der Verkehrssicherungspflicht (z. B. schlechte Beschilderung bzw. Beleuchtung) auf der Baustelle.

- BAUBEGLEITENDE QUALITÄTSPRÜFUNG UND DIE WAND-MASSIVHAUS SERVICE- GARANTIE
Jedes Bauvorhaben wird von unabhängigen Experten, z. B. des VQC, TÜV oder DEKRA (nach Wahl des Auftragnehmers), begleitet. Es finden mindestens 3 Sachverständigenbege- hungen bei Häusern auf Bodenplatte und 4 Sachverständigenbegehungen bei Häusern mit Keller statt. Diese fachliche Unterstützung der Bauleitung ist eine zusätzliche Sicherung für den Bauherrn: Mögliche Mängel werden besser entdeckt und können umgehend beseitigt werden. Über das Ergebnis der Qualitätsprüfung erstellt der unabhängige Experte ein entsprechendes Abschlusszertifikat. Das spart Geld und Nerven. Nach Abschluss der Baumaßnahme ist der Bauunternehmer weiterhin für Sie da. Auch nach dem Einzug in Ihr neues Zuhause wird Ihnen gerne vom Bauunternehmer geholfen.


Das Wand-MassivHaus Qualitäts-Schutz-Paket mit

- Erstellung eines Baugrundgutachtens
- Energiesparnachweis und Energieausweis
- Blower-Door Test
- VQC, TÜV oder DEKRA (nach Wahl des Auftragnehmers) überwachte u. geprüfte Bauausführung
- exakte Statikberechnung Ihres Hauses


Das Wand-MassivHaus Service-Schutz-Paket mit

- Individuelle Gestaltung Ihres Hauses möglich durch unsere hauseigene Architekturabteilung
- Verwendung von Markenprodukten
- Bauzeitgarantie
- Such-Service für ein Baugrundstück
- Kostenkontrolle bei der Planung durch Festpreis- und Fertigstellungsgarantie
- Unterstützung bei der Finanzierung durch unsere Finanzierungspartner
- Hausakte/Dokumentation

Alle Leistungen beziehen sich auf ein ausgebautes Haus.

Keller Gäste-WC Terrasse vorhanden Rollladen vorhanden

Sonstiges

Der hier angebotene Preis beinhaltet den Kaufpreis für ein ausgebautes Einfamilienhaus "Como" ohne Keller, inkl. Grundstück, zzgl. Erwerbs- und Baunebenkosten.

Gerne bauen wir Ihnen das Haus auch mit Kellergeschoss! Siehe Exposé inkl. Kellergeschoss.

+++ Bitte informieren Sie sich vor der Absprache eines Beratungstermins bei Ihrer Bank oder Ihrem Finanzierer bzgl. Ihrer Budgetplanung ! +++

Bei Interesse an diesem Angebot kontaktieren Sie bitte Ihren Ansprechpartner: Herr Gilg

Gerne vereinbaren wir mit Ihnen einen persönlichen Besichtigungstermin für das Grundstück, sowie ein persönliches Gespräch in unserem Büro.
So können Sie sich das beste Bild von unserem Angebot machen.
Weitere interessante Hausvarianten finden Sie unter www.wand-massivhaus.de

Gerne helfen wir Ihnen auch bei der Finanzierung Ihres Traumhauses mit unserem Wand-MassivHaus Finanzierungs-Service weiter. Rufen Sie uns an.

Für den Nachweis bzw. die Vermittlung des Baugrundstücks entsteht eine Maklercourtage von 3,57% inkl. MwSt. aus dem Grundstückskaufpreis. Das Haus an sich ist selbstverständlich provisionsfrei.
Auf dem Grundstück befindet sich aktuell noch Altbestand, dessen Rückbaukosten anteilig ca. 35.000 Euro betragen und im Preis noch nicht berücksichtigt wurden.

Alle genannten Angaben zu dem Baugrundstück beruhen auf Informationen durch den Eigentümer oder dessen Vermittler. Immobilienprofis.Bayern sowie die Wand-MassivHaus GmbH übernehmen keine Haftung für fehlerhafte Fremdaussagen und schulden keine Baugenehmigung. Irrtum und Zwischenverkauf müssen wir uns daher vorbehalten. Die Bebauung richtet sich nach den jeweils geltenden öffentlich-rechtlichen Vorschriften. Die Prüfung der Bebaubarkeit sowie möglicher Einschränkungen (z. B. Altlasten, Erschließung, Bodenbeschaffenheit) obliegt dem Käufer und muss im Rahmen seiner Sorgfaltspflicht eigenständig erfolgen. Mit dem Erwerb bestätigt der Käufer, dass er alle für ihn relevanten Informationen eigenverantwortlich eingeholt hat. Eine Haftung der Treffler Immobilien GmbH für die Beschaffenheit, Bebaubarkeit oder künftige Nutzung des Grundstücks ist ausgeschlossen.

Die Treffler Immobilien GmbH handelt ausschließlich als Vermittler des Kaufvertrags und übernimmt keine weitere Gewährleistung oder Garantie. Das Exposé dient ausschließlich zur Vorabinformation. Vertragsgrundlage ist der Bauwerkvertrag bzw. Verbrauchervertrag mit der Matthias Wand Massivhaus GmbH, einschließlich der darin enthaltenen Planunterlagen. Alle dargestellten Hausabbildungen und Grundrisse sind unverbindlich und können Sonderwünsche zeigen, die nicht Vertragsbestandteil sind. Die Grundrisszeichnungen sind nicht maßstabsgetreu und begründen keinen Anspruch auf Größenverhältnisse.

Einrichtungsgegenstände und Bodenbeläge (außer Fliesen in Bad und WC) sind nicht in unserer Leistung inbegriffen und separat zu bestellen.
Änderungen und Anpassungen bleiben vorbehalten, soweit sie gesetzlich zulässig sind. Alle Ansprüche ergeben sich ausschließlich aus dem Bauwerkvertrag.

Änderungen bleiben vorbehalten.

Energieausweisangaben

A+
A
B
C
D
E
F
G
H
  • Enerigeausweistyp Bedarfsausweis
  • Energieeffizienzklasse A+
  • Heizungsart Fußbodenheizung
  • Befeuerung / Energieträger Wärmepumpe

Weitere Informationen

Wie können wir Ihnen behilflich sein?

Herzlichen Dank für Ihre Anfrage.

Wir werden diese so schnell wie möglich bearbeiten.

Wie können wir Ihnen behilflich sein?
* Pflichtfeld